Protezione antincendio

Le nostre offerte nel campo della protezione antincendio vi danno la certezza che il vostro progetto di costruzione in legno sia conforme ai requisiti di legge e garantisca la protezione necessaria.

La vostra situazione/Situazione di partenza

  • Avete bisogno di una protezione antincendio conforme alla legge e alle norme.
  • Dovete attenervi alle prestazioni di ingegneria secondo le fasi SIA per un progetto di costruzione in legno o ibrida: progetto preliminare, progetto di costruzione e autorizzazione edilizia, gara d’appalto e confronto delle offerte, progetto di esecuzione, realizzazione e messa in servizio.

Le nostre prestazioni

Quanto prima il nostro team di ingegneria viene coinvolto nella fase di progettazione, tanto più saremo in grado di contribuire al processo di progettazione in maniera mirata con la nostra competenza in materia di materiali e prodotti. In questo modo si evitano onerose riprogettazioni e i relativi costi. In qualità di ingegneri di costruzioni in legno esperti, accettiamo volentieri qualsiasi sfida tecnica delle costruzioni in legno e studiamo con passione soluzioni intelligenti.

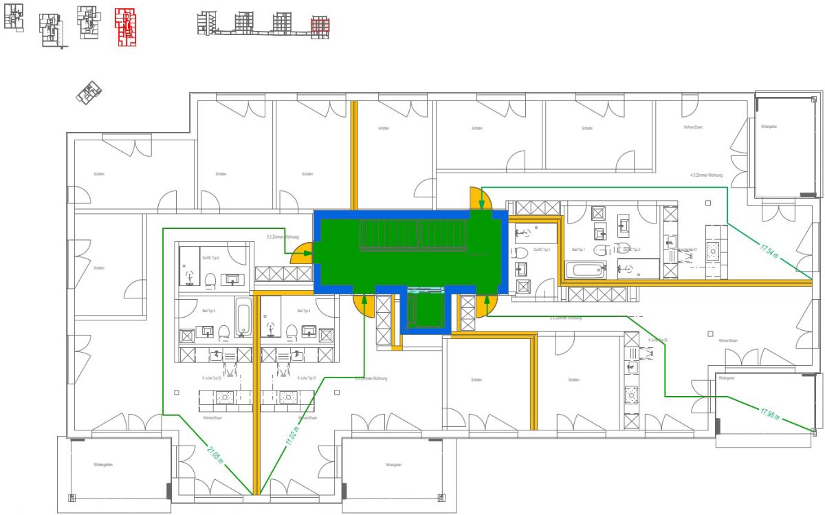
Piano di protezione antincendio di una casa plurifamiliare con quattro appartamenti e la via di fuga più lunga disegnata
  • Creazione di concetti e piani di protezione antincendio
  • Accordi e accertamenti preliminari con le autorità
  • Garanzia della qualità nella protezione antincendio secondo l’Associazione degli istituti cantonali di assicurazione antincendio AICAA
  • Scelta dei materiali con prodotti omologati
  • Protezione antincendio nelle costruzioni in legno per struttura portante, compartimenti tagliafuoco e rivestimenti di facciate in legno
  • Redazione della dichiarazione di conformità per la protezione antincendio da consegnare all’autorità di protezione antincendio

Perché scegliere noi

  • Combiniamo l’esecuzione delle costruzioni in legno con l’ingegneria e siamo quindi il partner decisivo del progetto, perché ci assumiamo la responsabilità in qualità di «ideatori». Con la conoscenza e l’esperienza generiamo un maggiore beneficio nello svolgimento del progetto e rispondiamo alle esigenze individuali, il che ripaga sempre. 
  • Grazie al nostro stabilimento di produzione interno conosciamo i costi effettivi della costruzione in legno e le possibilità di ottimizzazione senza limitare l’architettura.
  • Siamo convinti che i futuri progetti di costruzione in legno richiederanno nuove forme di collaborazione e partnership trasparenti da pari a pari. Con la crescente interconnessione del processo di costruzione e la digitalizzazione, è importante evitare le interfacce e sfruttare le connessioni.

Cosa dicono i nostri clienti

Bob Gysin Partner, Direzione
Quotes
Siamo uniti a Renggli da una collaborazione basata sull’esperienza, la fiducia e l’approccio pratico – in questo modo dalle idee nascono costruzioni in legno efficienti e realizzabili. Bob Gysin Partner, Direzione

I nostri progetti

Contattateci

Roger Gruber

Roger Gruber

Resp. del progetto per l'acquisizione di costruzioni in legno

+41 91 735 34 27

Quotes
Saremo lieti di assistervi dalla richiesta di ampliamento del vostro edificio fino all’elaborazione del vostro grande progetto in legno.