Protection incendie

Nos offres dans le domaine de la protection incendie vous donnent la certitude que votre projet de construction bois répond aux exigences légales et que la protection nécessaire est garantie.

Vos besoins

  • Vous avez besoin d’une protection incendie conforme à la loi et aux normes.
  • Vous avez besoin de prestations d’ingénierie conformes aux phases SIA pour un projet de construction bois ou hybride : avant-projet, projet de construction et permis de construire, appel d’offres et comparaison de celles-ci, projet d’exécution, exécution et mise en service.

Nos prestations

Plus notre équipe d’ingénierie est impliquée tôt dans la phase de planification, mieux nous pouvons appliquer de manière précise notre expertise des matériaux et des produits à la conception. Ainsi, il n’est pas nécessaire de repenser la planification, ce qui évite de faire grimper les coûts. En tant qu’ingénieur bois expérimenté, nous sommes ravis de relever tous les défis techniques de la construction bois et nous passionnons pour la recherche de solutions intelligentes.

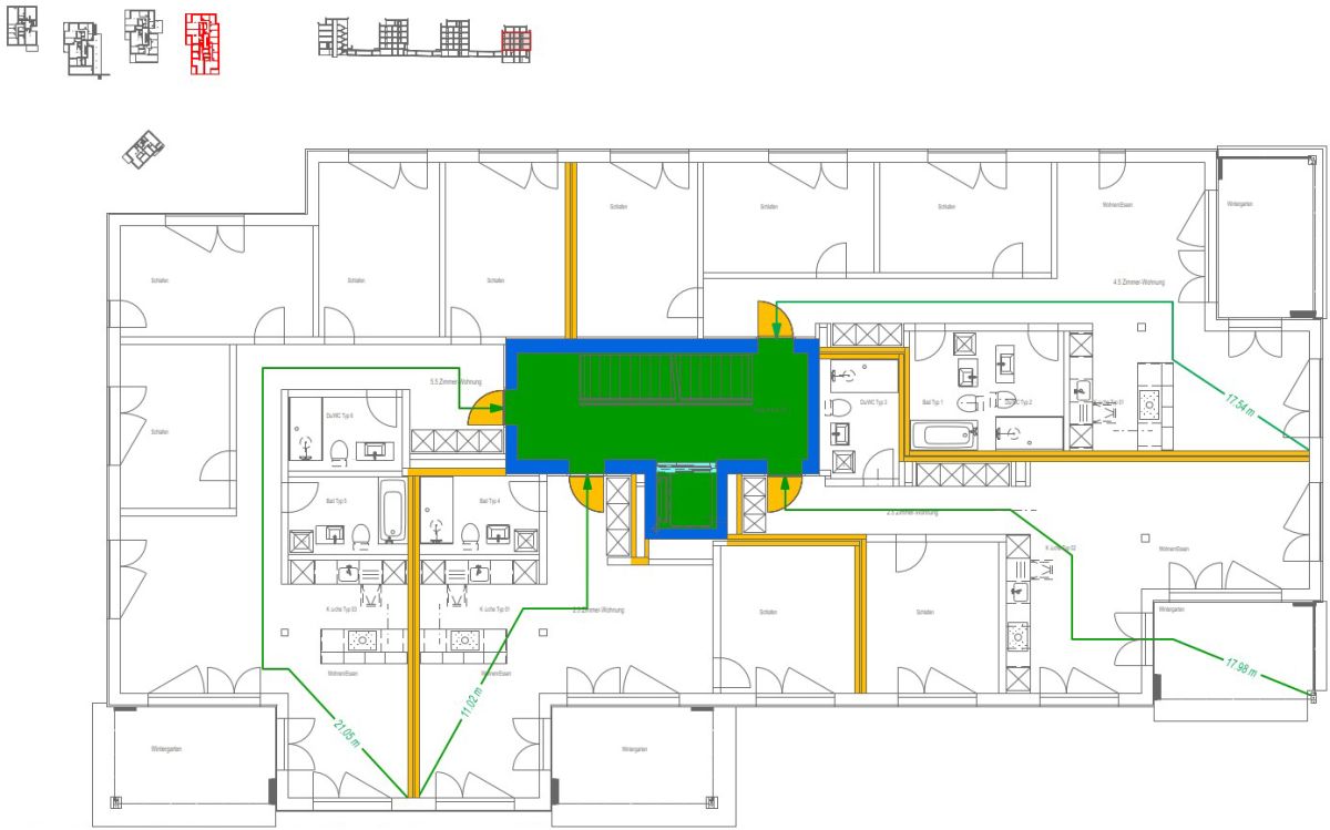
Plan de protection incendie d’un immeuble d’habitation avec représentation de la voie d’évacuation la plus longue pour chacun des quatre appartements
  • Élaboration de concepts de protection incendie et de plans de protection incendie
  • Entretiens et vérifications préalables avec les autorités
  • Assurance qualité en protection incendie selon les règles de l’Association des établissements cantonaux d’assurance incendie (AEAI)
  • Réalisation avec des produits homologués
  • Protection incendie dans la construction bois pour l’ossature, les compartiments coupe-feu et les revêtements de façades en bois
  • Établissement d’une déclaration de conformité pour la protection incendie à l’attention des autorités de protection incendie

Pourquoi nous choisir

  • En combinant la réalisation de la construction bois avec l’ingénierie, nous sommes un partenaire essentiel au sein des projets. Nous assumons les responsabilités qui incombent à notre grande implication. Avec nos connaissances et notre expérience, nous exerçons une influence positive sur le déroulement du projet. Nous écoutons les besoins de chacun, et cette approche porte toujours ses fruits. 
  • Comme nous possédons notre propre usine de production, nous connaissons les coûts réels de la construction bois et les optimisations possibles, sans jamais compromettre l’architecture.
  • Nous sommes convaincus que les projets de construction bois du futur nécessitent de nouvelles formes de collaboration et des partenariats transparents d’égal à égal. La numérisation et le fonctionnement en réseau, de plus en plus présents dans le processus de construction, éliminent les intermédiaires et génèrent des synergies.

Ce que disent nos clients

Direction de Bob Gysin + Partner AG
Quotes
Nous entretenons avec Renggli Construction bois une collaboration partenariale basée sur l’expérience, la confiance et une approche pratique. Ensemble, nous transformons des idées en constructions bois efficaces et réalisables. Direction de Bob Gysin + Partner AG

Nos projets

Nous contacter

Elouan Steffen

Elouan Steffen

Chef de team Acquisition Construction bois

+41 26 460 30 48

Quotes
C’est avec plaisir que nous vous aidons, de vos premières questions concernant l’agrandissement de votre bâtiment jusqu’à la réalisation de votre grand projet de construction bois.